







Stabilisieren Sie Ihre freistehende Glaswand sicher und stilvoll – ganz ohne Glasbohrung. Der 90° Winkelstabilisator sorgt für maximale Standfestigkeit bei Duschabtrennungen und überzeugt durch seine verdeckte Verschraubung sowie flexible Verstellmöglichkeiten.
Ideal für Glasdicken von 8–10 mm eignet sich dieser Stabilisator für verschiedenste Duschsituationen. Dank Langlöchern kann die Anpassung millimetergenau erfolgen. Das moderne Design fügt sich harmonisch in jede Badarchitektur ein.
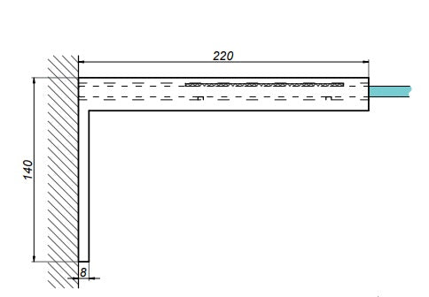
Die Montage ist einfach, schnell und zuverlässig – ohne Eingriff ins Glas. Mit einer stabilen Größe von 220 × 140 mm bietet dieser Halter optimalen Halt bei Glaselementen bis max. 900 mm Breite.
Wählen Sie je nach Einbausituation zwischen „Rechts“ oder „Links“.